Kontakt os

Jeg accepterer, at ide-huse må benytte oplysninger til at besvare min henvendelse pr. mail eller telefon. Vi behandler dine oplysninger i forhold til vores gældende cookie- og privatlivspolitik.

+45 7027 1800

Download vores nye katalog

Jeg accepterer, at ide-huse må benytte oplysninger til at besvare min henvendelse pr. mail. Vi behandler dine oplysninger i forhold til vores gældende cookie- og privatlivspolitik.

Miva huse

Ring +45 7027 1800 i dag, og aftal et møde

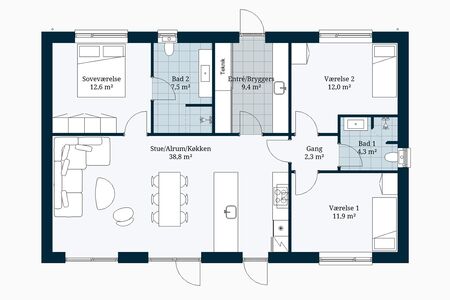
Miva – husene, er huset med det minimalistiske udtryk, med enkle og rene linier som er med til, at give huset et let og elegant udtryk. Husene er opført i gode materialer, med minimal vedligehold for øje. Der er mulighed for ændring af indretning og indflydelse på materialevalg. Alle vores typehuse, også Miva, udføres som energiklasse A2015, med mulighed for opgradering til energiklasse A2020 - se mere om energiklasser og lavenergihuse her.

Fleksibilitet i indretningen

Når du vælger Miva, får du et hjem med en gennemtænkt og funktionel indretning, der kan tilpasses dine behov. Få rådgivning fra vores eksperter hele vejen og byg et hus, der er lige så unikt som dig.

Ring og få en
snak med Holger

 

+45 7027 1800

Udfyld formularen for at hente vores nye katalog

Jeg accepterer, at ide-huse må benytte oplysninger til at besvare min henvendelse pr. mail. Vi behandler dine oplysninger i forhold til vores gældende cookie- og privatlivspolitik.

Download vores nye katalog